Univers-City: Bringing the University to the City, 2020
The concept of “Univers-City” highlights five key aspects of the Solbosch campus and its surroundings at the BUD scale: connecting the campus to the city, mobility systems, landscape design, environmental initiatives (including water management and energy), and the broader notion of symbiosis. These strategies not only address sustainability beyond environmental concerns but also consider social and economic factors. By integrating the university with the city of Brussels, the campus will be transformed into an open space for the local community.
My primary goal was to open the campus to the city. To achieve this, creating several communal spaces, including a swimming pool, sports fields, urban farming areas, a rooftop playground, 24/7 open libraries, a café and food services, a resource center, auditoriums, and multi-functional spaces for public events and conferences, were proposed. The new entrance building would also feature community services, serving as a bridge between the university and the city.



“Being” Museum – Tehran, 2012
“Architectural phenomenologists defended the uniqueness of the architect’s individual experience, yet they also resisted the idea that experience was purely individualistic. Believing that architects should retain a commitment beyond the self, architectural phenomenologists longed for a community of shared values and beliefs in which to ground self-expression.” (Jorge Otero-Pailos, Architecture’s Historical Turn: Phenomenology and the Rise of the Postmodern)
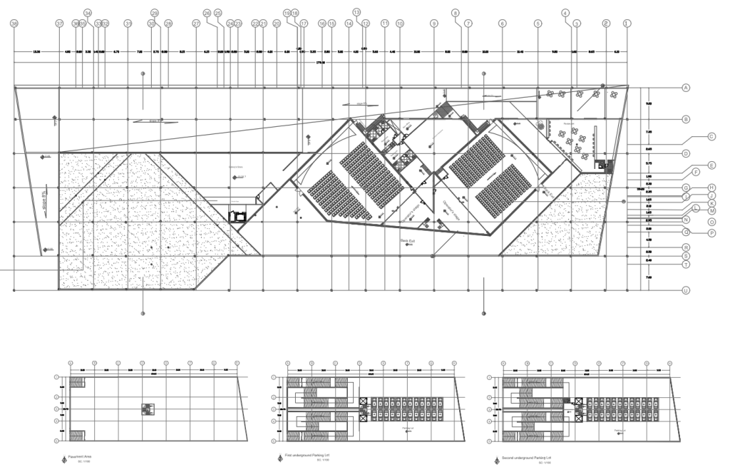
In the “Being” Museum project, I chose to place the building underground, leaving the ground floor open, empty, and accessible to the public. This approach allows part of the project to be redefined by the everyday life of the city. Inspired by architectural phenomenology, visitors can engage with the building through all their senses, experiencing it in a more profound and immersive way.






HY-TAB Theatre – Tehran, 2010
In designing this theatre, I was inspired by the idea that the voice of the public is a powerful force for societal change. Public buildings, in this context, can function as theatrical stages within the city, where each individual becomes an actor of change, and their voice can be heard. The central feature of the HY-TAB Theatre is its accessible rooftop, which includes several stages for gatherings, public art, and other events. This project is situated on one of Tehran’s most prominent avenues, surrounded by universities and cultural spaces, enhancing its role as a platform for public expression.



The House Of An Architect, 2009
The vernacular architecture of the Middle East was rooted in an “internally-oriented concept” (Der-Grigorian, 1998, p. 174), where the exterior façade facing the street and public space was considered unimportant and treated with humility, while the inner courtyard acted as an ‘open face.’ In contrast, the enclosed interior courtyards of residential units were diverse and functioned as in-between zones, bridging the private (inside) and public (outside) spaces, with a semi-public character (Der-Grigorian, 1998, p. 174).
This drawing explores how the traditional concept of the veil can be modernized in relation to architecture. By reinterpreting this cultural element in the context of the conventional courtyard archetype, I sought to transform the morphology of the Iranian house and redefine it as a semi-public form of architecture.


